Grain Duct Sealed Blast Gates

The principal application for SpeedLock grain duct is where any suspended airborne matter of an aggressive or abrasive nature must be extracted. It is also highly effective in industries where the product being moved must be treated gently, or in high volumes.

Code GBGS



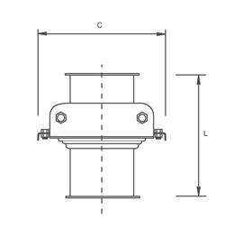
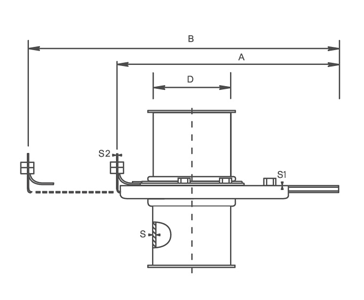
Dimensional Specifications

Product Code
Inside diameter
D mm
Housing thickness
S mm
S1 mm
Gate thickness
S2 mm
A mm
B mm
C mm
Overall Length
L mm
Weight kg
GBGS160
160
0.9
1.25
2.0
405
585
250
135
3.2
 
 

Subscribe for a Complete Catalogue

developed by Pretty Clever Consulting

Additional Product Information and Availability

Name

Company

Email

Product Diameter (optional)